+Advanced Search 中文版
  • Volume 4,Issue 01,2026 Table of Contents
    Select All
    Display Type: |
    • Introduction to Guest Editor Ye Xia, Vol. 4, Issue 01, 2026

      2026, 4(01). DOI: 10.59238/j.pt.202601_fdny

      Abstract (151) HTML (0) PDF 157.46 K (150) Comment (0) Favorites

      Abstract:

    • >Scientific Research
    • An Explainable AI Framework for Crack Width Behavior Analysis in Prestressed Concrete Beams

      2026, 4(01):1-23. DOI: 10.59238/j.pt.20251230002

      Abstract (89) HTML (49) PDF 1.75 M (147) Comment (0) Favorites

      Abstract:Accurate prediction of crack width is essential for serviceability design and durability assessments of prestressed concrete structures. This study presents an explainable machine learning framework for predicting the maximum crack width of prestressed concrete beams based on experimental data. A comprehensive database of 404 specimens, including the bending moment, prestress index, load ratio, effective depth, and section stiffness, was constructed and enhanced through mechanically informed feature engineering. Random forest and XGBoost regression models were developed and systematically tuned using cross-validated hyperparameter optimization. Among the evaluated models, XGBoost achieved the highest predictive accuracy, with a coefficient of determination of 0.6507 and a root mean square error of 0.184 mm. Model interpretability was investigated using feature importance measures and SHapley Additive exPlanations, which identified the bending moment, load ratio, concrete compressive strength, and prestress index as the dominant factors influencing crack width. The observed relationships are consistent with the established flexural cracking theory, confirming that the proposed model captures physically meaningful behavior. The results demonstrate that combining explainable artificial intelligence with structural mechanics provides a robust and transparent tool for crack width prediction, offering valuable support for the performance-based evaluation and design of prestressed concrete members.

      • 0+1
      • 1+1
      • 2+1
      • 3+1
      • 4+1
      • 5+1
      • 6+1
      • 7+1
      • 8+1
      • 9+1
      • 10+1
      • 11+1
    • Adaptability Between Structural Characteristics and Additional Effective Damping Ratio Calculation Methods

      2026, 4(01):24-35. DOI: 10.59238/j.pt.20250929002

      Abstract (89) HTML (37) PDF 1.66 M (112) Comment (0) Favorites

      Abstract:To investigate the significant influence of structural characteristics on the calculation of additional effective damping ratios in seismic energy dissipation structures, this study examines four typical structural types: steel frames, concrete frames, concrete frame–shear walls, and concrete shear walls. Additionally, the compatibility between the structural features and three calculation methods—the code method, energy ratio method, and time-variant method—is analyzed. Results show that the optimal method depends strongly on the structural type. For steel frames with low inherent damping and high ductility, the energy ratio method proves to be the most accurate. In the case of concrete frames, all three methods yield small calculation errors; however, the code method is recommended because its computational efficiency and accuracy are comparable to those of the time-variant method. For concrete frame-shear walls with notable stiffness variations, the time-variant method achieves the highest precision, although the code method remains a practical primary alternative. Regarding concrete shear walls, the code method tends to overestimate the damping effects, making the energy ratio method or time-variant method the preferred choice. This study establishes clear adaptation guidelines between structural characteristics and calculation methods, effectively resolves applicability issues, improves computational accuracy and design efficiency, and provides an important basis for the engineering application of viscous dampers.

      • 0+1
      • 1+1
      • 2+1
      • 3+1
    • Applications of Taguchi Methods in Prestressed Concrete Structures

      2026, 4(01):36-54. DOI: 10.59238/j.pt.20251010001

      Abstract (94) HTML (42) PDF 1.41 M (144) Comment (0) Favorites

      Abstract:Prestressed concrete (PSC) structures are fundamental to bridges, buildings, and other critical infrastructure, requiring design approaches that balance mechanical performance, durability, and cost throughout the service life. Because PSC systems involve numerous interacting variables—from material properties to construction practices and long-term environmental effects—their optimization demands methods capable of studying many factors simultaneously and identifying robust combinations. The Taguchi method, a branch of design of experiments (DoE), offers an efficient framework for this purpose, yet its application to PSC remains limited and not well established. This paper addresses that gap by outlining the principal potential applications of the Taguchi methodology throughout the PSC structures life cycle—covering Design and Material Dosage, Production and Prefabrication, Construction and Erection, Service and Operation, and Rehabilitation and End-of-Life stages—highlighting opportunities for future research and practical implementation. Building on this context, an illustrative cost-optimization case study is presented in which a Taguchi orthogonal array is applied to the design of an industrial precast PSC building. In this example, four key design factors—Distance Between Frames, Beam Type, Purlin Type, and Pillar Section—are analyzed to identify the most influential parameters and to determine the configuration that minimizes production and transportation costs. This study encourages researchers to apply Taguchi methods throughout the PSC life cycle.

      • 0+1
      • 1+1
      • 2+1
      • 3+1
      • 4+1
    • >Product Research and Development
    • Smartphone application for structural health monitoring of stay cables

      2026, 4(01):55-67. DOI: 10.59238/j.pt.20260312001

      Abstract (127) HTML (41) PDF 1.41 M (147) Comment (0) Favorites

      Abstract:App4SHM is a mobile system for structural health monitoring (SHM) of bridges that aims to support routine inspections. It consists of a front-end smartphone application that is used to measure natural frequencies of vibration and to detect damage supported by a backstage server software, accessible through any internet browser. This paper focuses on the new module for stay cables, which directly converts natural frequencies into cable tension forces based on the cable's material and geometrical characteristics. The conversion uses an estimate of the forces from the taut string theory. Regardless of the module, App4SHM works in two modes. The training mode is used to collect observations composed of natural frequencies under normal operational and environmental conditions. The observations are used to train an unsupervised machine learning algorithm to learn the structure's normal behavior. The damage detection mode collects unlabeled observations, which are tested against normal behavior to detect abnormal performance that may be indicative of damage or excessive tension. The Edgar Cardoso Bridge — a large cable-stayed bridge in Portugal, undergoing rehabilitation and stay cables replacement — is used as a case study for the measurement of cable tension forces.

      • 0+1
      • 1+1
      • 2+1
      • 3+1
      • 4+1
    • >Design and Construction
    • Integrated Cable Force Release and Replacement Construction Technology for Group Anchor Steel Strand Cables of Long-Span Cable-Stayed Bridges

      2026, 4(01):68-79. DOI: 10.59238/j.pt.20250903001

      Abstract (83) HTML (68) PDF 1.54 M (146) Comment (0) Favorites

      Abstract:To address the technical difficulties associated with the replacement process of group-anchored steel strand cables for long-span cable-stayed bridges, such as the lack of force-release structures in the anchorages, large elongation, and difficulty in single-strand unloading, this paper takes the cable replacement project of the Yiling Yangtze River Bridge as the background and proposes an integrated cable force release device and construction technology suitable for long-cable replacement. The device connects the replacement anchorages with the exposed steel strands of the old cables and combines reaction support frame, tensioning rod, and jacking system to achieve graded and synchronous unloading of cable force, effectively addressing the limitations of the original anchorages, which cannot directly release cable force and have insufficient adjustment capacity. Engineering practices shown that this method ensures safe and controllable construction, smooth cable force unloading, and minimal structural disturbance, successfully achieving the replacement of all 236 stay cables on the bridge. Post-construction inspection confirms that the cable forces and deck alignment meet the design requirements, verifying the reliability of this technology. The technical system described in this paper can provide references for the design and construction of cable replacement in similar bridges.

      • 0+1
      • 1+1
      • 2+1
      • 3+1
      • 4+1
      • 5+1
      • 6+1
      • 7+1
      • 8+1
      • 9+1
      • 10+1
      • 11+1
      • 12+1
      • 13+1
    • Mechanical Behavior Analysis of the Pile Cap for the Main Pylon of an A-Shaped Cable-Stayed Bridge

      2026, 4(01):80-93. DOI: 10.59238/j.pt.20251117001

      Abstract (90) HTML (43) PDF 1.94 M (144) Comment (0) Favorites

      Abstract:To investigate the mechanical behavior of the pile cap for the main pylon of an A-shaped cable-stayed bridge without crossbeams, a realistic bridge of this type was selected as a case study. A grillage finite element model of the entire bridge was established using MIDAS to compare and analyze the effects of three different pile foundation layout schemes on the mechanical response of the pile cap. Subsequently, a local solid model of the pile cap was developed using MIDAS FEA NX to examine its transverse stress distribution under frequent load combinations. The results of comparison and selection revealed that the optimal scheme involves symmetrically arranging “2+2” piles at the dumbbell-shaped necking region in the center of the pile cap. This configuration effectively reduces the span, resulting in a more uniform and reasonable distribution of stress and deformation in the pile cap under frequent load combinations. The load-bearing mechanism of the pile cap is characterized by transverse prestressed steel tendons acting as key “balancing elements”. By establishing a prestress field within the pile cap, these tendons directly resist the horizontal thrust generated by the pylon, working together with the passive pile foundation to form a three-dimensional load-bearing system that internally balances, spatially distributes, and transfers the complex spatial forces from the superstructure. In addition, reinforcement meshes should be arranged in the prestress anchorage zones and in the regions between piles at the bottom of the pile cap to resist local tensile stress concentrations and control cracking. Traditional spatial grillage models exhibit limitations in analyzing the mechanical behavior of the thick and large pile caps in such A-shaped pylons, which may lead to distorted results and overestimation of local stresses. Therefore, the use of solid finite element models is recommended for accurate verification and design.

      • 0+1
      • 1+1
      • 2+1
      • 3+1
      • 4+1
      • 5+1
      • 6+1
      • 7+1
      • 8+1
      • 9+1
      • 10+1
      • 11+1
    • >Project Report
    • Research on Key Technologies for the Design of the Pedestrian and Non-Motorized Vehicle Channel of the Zhongxing Bridge

      2026, 4(01):94-106. DOI: 10.59238/j.pt.20251107002

      Abstract (94) HTML (34) PDF 2.09 M (121) Comment (0) Favorites

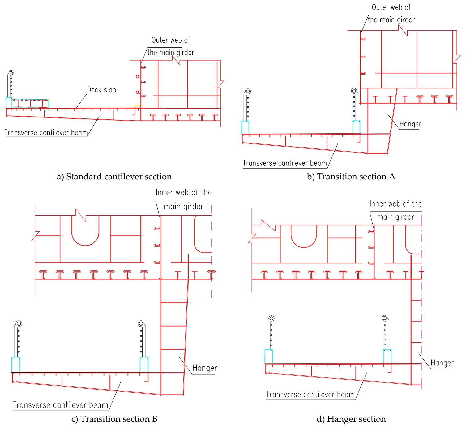
      Abstract:The main bridge of the Zhongxing Bridge is a hybrid girder extradosed cable-stayed bridge with a span arrangement of (64+86) m + 400 m + (86+64) m. A pedestrian and nonmotorized vehicle (hereafter referred to as a “pedestrian/bicycle”) crossing channel is designed to traverse the river along the main bridge. In this paper, the design scheme of this pedestrian/bicycle channel is investigated in terms of structural mechanics, structural detailing, economy, and maintenance. The design scheme features a vertical separation of vehicle and pedestrian/bicycle traffic, in which the pedestrian/bicycle system is located outside the webs of the box girder. To decouple the structural connection between the main bridge and the pedestrian/bicycle channel, thereby reducing the effect of the main bridge forces on the channel structure, longitudinal and transverse expansion joints were installed and the installation sequence of the channel was optimized. A computational analysis was performed using the finite element software Midas Civil. The results indicate that the previously mentioned methods can significantly reduce structural stress. Furthermore, analyses of pedestrian comfort and the structural performance of the pedestrian staircase were conducted. The results indicate that this pedestrian/bicycle channel can satisfy both static and dynamic requirements.

      • 0+1
      • 1+1
      • 2+1
      • 3+1
      • 4+1
      • 5+1
      • 6+1
      • 7+1
      • 8+1
      • 9+1
      • 10+1
      • 11+1
      • 12+1
      • 13+1