+Advanced Search 中文版
A Pioneer in Modern Prestressed Concrete Technology: Eugène Freyssinet
“Prestress Technology” Editorial Office
I was born a builder. It was for me both an overriding need and also an endless source of joy imposing upon the crude material those shapes and forms which sprang from my imagination [1].——Eugène Freyssinet
Figure1. Eugène Freyssinet (1879-1962)
Eugène Freyssinet (1879-1962) was an important French structural engineer and architect, regarded as one of the founders of prestressed concrete technology. He is considered one of the most prominent structural engineers of the 20th century, having made outstanding contributions in the design, analysis, and construction methodologies of structures.
Freyssinet was born in 1876 to a modest working-class family in Objat, a smalltown close to Limoges [2], and showed an early interest in engineering science. As he himself stated, He was born a builder. It was his passion for structural engineering that ultimately led him to become a celebrated master of structural design.
During his studies at Polytechnique in 1903, Freyssinet saw the impressive cantilevers built by Rabut(his professor) in the Rue du Rome in Paris. To reduce deflection of cantilecers, Rabut stressed some bars to compensate the deformation. It was the first idea that came to Freyssinet’s mind in stressing reinforcement.
Figure2. Cantilevers built by Rabut in Rue du Rome in Paris with stressed bars
After leaving the Polytechnique, Freyssinet took charge of the services at Moulins in 1905. Here, Freyssinet constructed the first bridge of his career, a4.5m wide concrete bridge, for a cost that was only 25% of the official costs.
Freyssinet's notable achievement in his early career was the construction of the Veurdre bridge. Initially, the highway department had planned to spend 630, 000 francs to build a "stone bridge" to replace the old one on the site [3]. However, Freyssinet proposed to construct three large bridges for the same cost. The three bridges were the Veurdre, the Boutiron, and the Châtel-de-Neuvre Bridges. Mercier allowed the funds and he had to do everything else, from gathering the team to looking for the materials or the auxiliary means. It was a one-man entrepreneurship. It was 1907 and he was just 28 years old [2].
During this period, he discovered that the elastic modulus of concrete decreased over time (now known as creep) , but the national regulations in 1906 denied this fact [4].
The construction of the Veurdre Bridge was an incredible adventure. In the winter of 1909 to 1910, a flood almost destroyed the city center [2]. Luckily, the bridge did not encounter any major issues, and the bridge was completed with the help of hydraulic jacks and without any setbacks. The bridge was aligned vertically with the handrail. After some time, when Freyssinet returned to the bridge, he noticed significant arch deformation on the handrails that increased over time. The bridge was in danger of collapsing. As the positions for the jacks were still open, he took some workers and in one night elevated the bridge back to a safe position. This problem and its solution conclusively demonstrated him that the modulus of elasticity had clearly reduced.
Figure3. Scheme of the Veurdre Bridge
Figure4. The Veurdre Bridge
After the completion of the Veurdre bridge, Freyssinet continued to design several other large bridges, such as the St. Pierre-de-Vauvray Bridge, the Candelier Bridge, and the Plougastel Bridge, repeatedly breaking the then-world records for bridge span.
Figure5. St. Pierre-de-Vauvray Bridge (The bridge was destroyed during the World War Ⅱ.)
Figure6. The Candelier Bridge
Figure7. Scheme of the Plougastel Bridge
Figure8. Plougastel Bridge
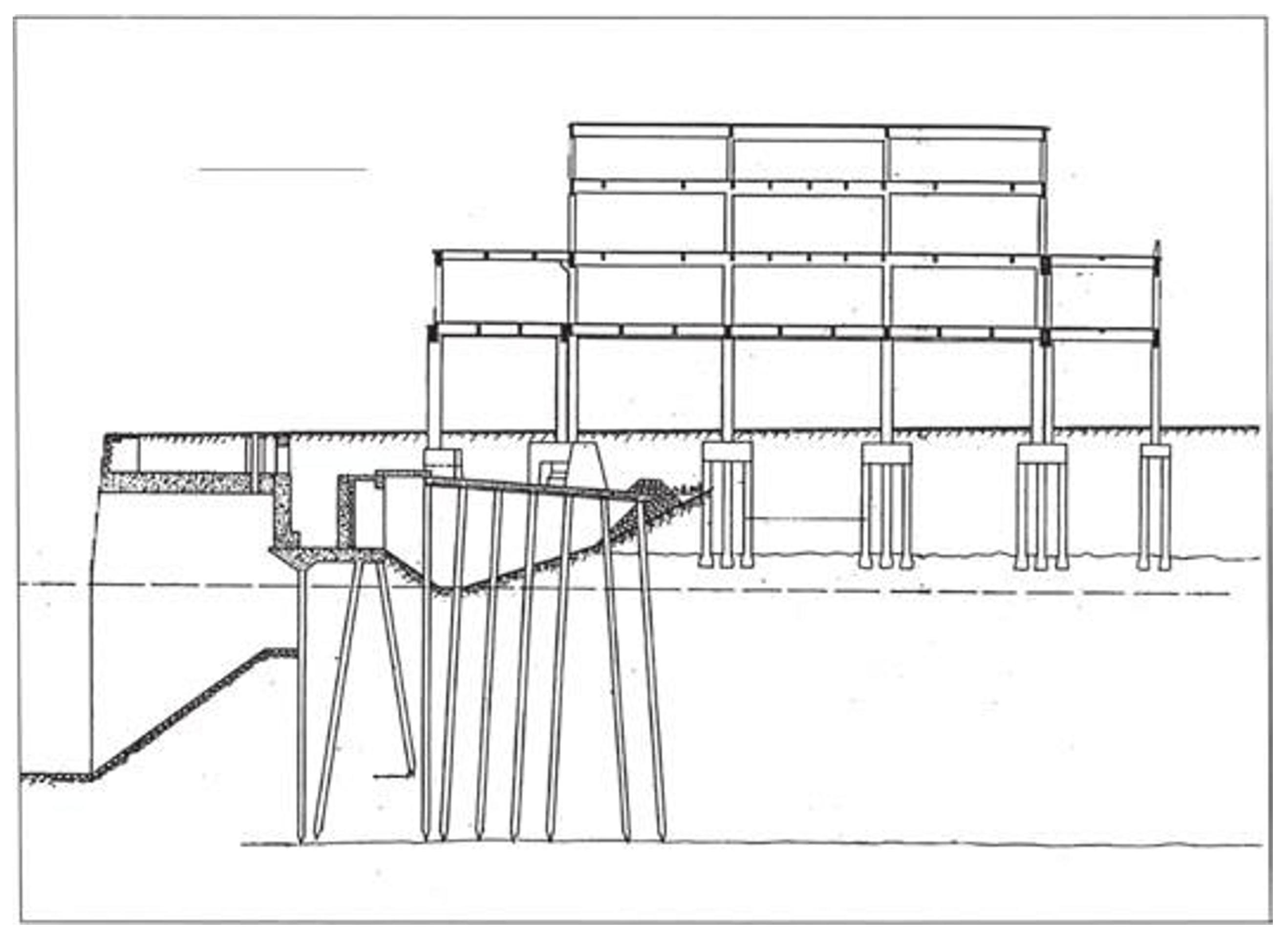
His extensive experience in bridge construction also deepened his understanding of concrete structures. In 1928, Freyssinet submitted a patent in Paris, which contained a detailed description of how to use steel reinforcement to achieve permanent pre-stress on materials like concrete [2]. This marked the birth of modern pre-tensioned concrete construction. He founded a factory for precast concrete components, which laid the foundation for the salvation of the Maritime Station in 1934.
Figure9. Precast prestressed factory for posts at Montarguis
Figure10. Rescue of the Le Havre Maritime Station
In 1939, at the age of nearly 60, Freyssinet invented a specialized lightweight jack and anchoring system for pre-stressing. With this innovation, post-tensioning technology reached maturity. Subsequently, Freyssinet designed several renowned bridges and buildings and invented the Precast Segmental Construction technique.
Figure11. Schematic drawings of Freyssinet post-tensioning jack
Figure12. Invention of post tensioning in 1939 (concrete anchorage cone and tensioning jack)
Pre-stressed concrete technology is considered the most important advancement in the development of concrete, and has contributed immense value to the reconstruction of the post-World War II world.
As an outstanding structural engineer, Freyssinet's remarkable achievements have made him one of the most respected individuals in the world. His innovations and unique cost-effective methods have influenced many architects, enthusiasts, and scholars who followed, and his works continue to be regarded as exemplars of modern architecture to this day.
Acknowledgement: Some of the information in this article was provided by Mr. Yang Xiaotian, author of the article of the WeChat Offical account (iStructure) .
Freyssinet, E. Cent ans de béton armé. Available online:https://enseignants.lumni.fr/fiche-media/00000000610/le-centenaire-du-beton-arme.html(accessed on 10/06/2023).
Hernández, D. F.-O. Eugène Freyssinet. I was born a builder. In Proceedings of the 28 Dresdner Brückenbausymposium Isbn,2018.
iStructure Master of Structures-Freyssinet. Available online:https://mp.weixin.qq.com/s/foBoOp0KsHqzfj21qZUGA(accessed on 05/06/2023).
Shushkewich, K. W. Eugene Freyssinet-Invention of Prestressed Concrete and Precast Segmental Construction. Structural Engineering International 2012,22,415-420,doi:10.2749/101686612x13363869853338.