+Advanced Search 中文版
Structural Design and Mechanical Properties of a PlateShell Structure Bridge
Liping Xu1,2 , Huxiang Tang2 , Zineng Chen2 , Long Sun2
1. Department of Bridge Engineering, Tongji University, Shanghai 200092 , China
2. Tongji University Architectural Design (Group) Co., Ltd., Shanghai 200092 , China.
Abstract
The main bridge of Quzhou Academy Bridge is a V-shaped rigid frame bridge with a hanging hole, the span arrangement is 75 𝑚 + 150 𝑚 + 75 𝑚 = 300 𝑚, the middle span hanging hole was provided with a 60 m steel box girder, and the V-leg structure and the main beam are all prestressed concrete box girders with variable height. Due to the need for bridge landscapes and pedestrian viewing platforms, the large extension arc V-leg structure extends 6 m to each side of the bridge deck, and the total width is 41 m. It was necessary to consider the stress effect of the shell in the longitudinal and transverse directions. The stress and deformation of the shell in two directions are analyzed by using the finite element method solid model, and the difference between the solid model and the frame model is compared in detail. Finally, the overall structure was analyzed and checked in the modified simplified frame finite element model.
1 . Introduction
Space plate-shell structures are commonly used in large-span structures, such as large stadium roofs and large-span floor slabs, but are less common in transportation infrastructure, such as bridges [1]. The spatial mechanical behavior of V-shaped rigid frame bridges varies depending on the inclination angle and slab thickness of the V legs [2]. The stress at the joint between the V-leg and the main beam is also complex. Previous research has mostly focused on situations where the V-leg is the same width as the main beam, and there is little research on cases where the V-leg is significantly wider than the main beam [3]. In this paper, the solid finite element method is used to model and analyze the V-shaped rigid frame bridge as a whole, and the results are compared with a simplified frame model to summarize the load characteristics of plate shell structure bridges.
2 . Bridge structure design
The Quzhou Academy Bridge is a V-shaped rigid frame bridge with a steel box girder hanging hole. In order to achieve the creative landscape effect of the open book of the bridge, the width of the lower arc V-leg is larger than the width of the upper main beam. The V-leg not only bears the dead load and live load transferred from the upper main beam but also bears the load acting on the viewing platform of the V-leg. The structural form and stress state are more complex. The V-leg platform has the following structural characteristics: it measures 62.5 meters in total length in the longitudinal direction and 41.0 meters in width in the transverse direction. Each side is constructed with a plate-shell structure, which spans 31 meters in length and 41 meters in width. The thickness gradually increases from 1.8 meters at the end to 3.5 meters at the root. Moreover, the V-leg section adopts a prestressed concrete boxstructure, featuring one box and ten cells. The spatial mechanical characteristics of the plate-shell structure are obvious, and the common finite element method calculation method of frame is difficult to accurately reflect the real mechanical status of the structure. Here, the ratio of the average plate thickness to the minimum size of the plate plane is 𝑡 /𝑏 = 2.65/31 = 1/11.7 (less than 1/5~1/8) , indicating that the plate is relatively thin in terms of thickness. In the three-dimensional space coordinate system, the thickness direction is Z, the longitudinal direction is Y, and the transverse direction is X. For thin plates, the stress components 𝜏 𝑧 𝑥 , 𝜏 𝑧 𝑦 𝑎 𝑛 𝑑 𝜎 𝑧 in the Z direction can be ignored, but the stress components in the X and Y directions cannot be ignored. In summary, it is necessary to establish a solid model for the analysis of the V-leg plate-shell structure.
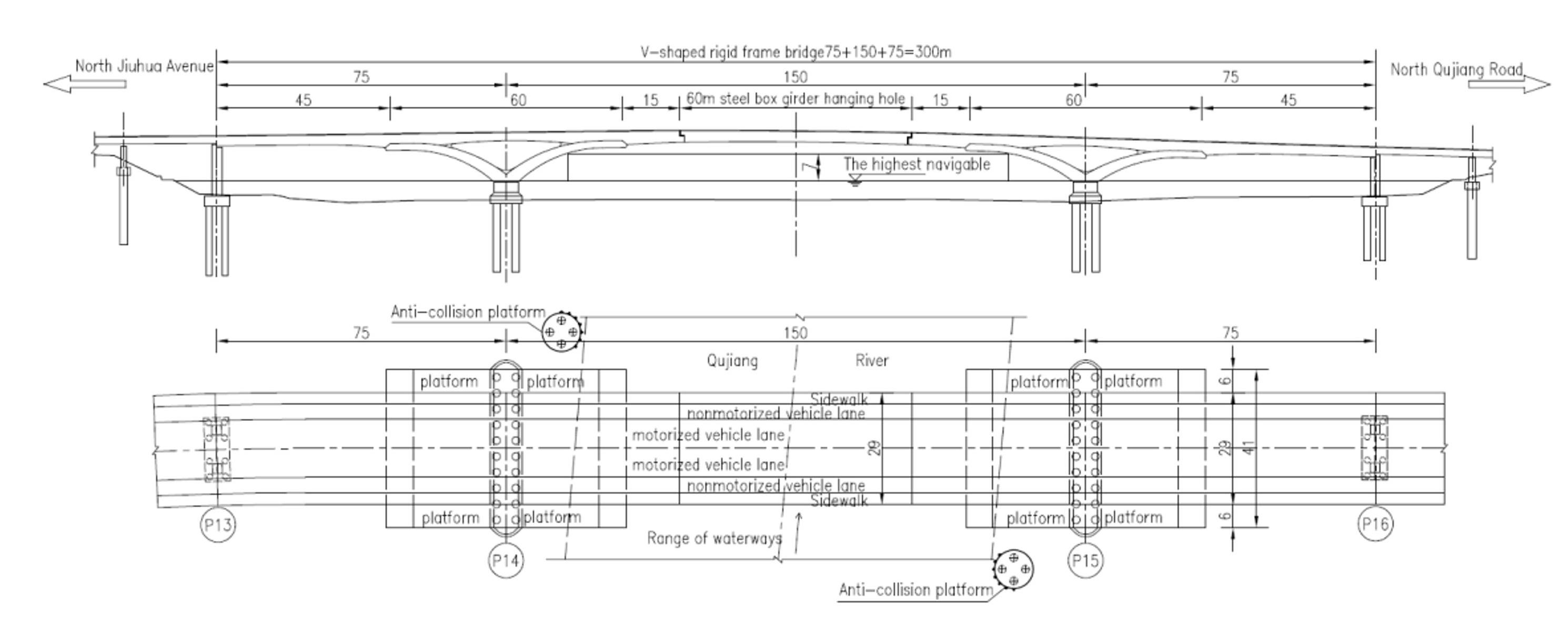
This project is an important passage connecting the central urban area of Quzhou City with the western district. The project starts from Jiuhua North Avenue in the west and connects with the West Road of Dong’an Academy after crossing the Qujiang River. The main bridge crosses the Qujiang River and reserves the navigation clearance of the Class III channel. The west approach bridge is 345 m long and crosses the campus of Quzhou Vocational and Technical College, of which approximately 70 m crosses the school playground runway. The east approach bridge is 50 m long, crossing the Binjiang levee and Qujiang North Road. The total length of the bridge is 695 m, of which the length of the main bridge is 300 m, the length of the approach bridge is 395 m, and the width of the bridge is 29 m.
The main bridge adopts a three-span V-shaped rigid frame structure system with a hanging hole. The span arrangement is 75 𝑚 + 150 𝑚 + 75 𝑚 = 300 𝑚 , and the middle span is provided with a60 m steel box girder hanging hole, as shown in Figure1. The cross-section layout is as follows: 3 m (sidewalk) , 4 m (nonmotorized vehicle lane) , 15 m (motorized vehicle lane) , 4 m (nonmotorized vehicle lane) , and 3 m (sidewalk) , for a total of 29 m. The arch V-leg structure and the main girder are of prestressed concrete box section with variable height. The V-shaped rigid frame pier beam is consolidated, and the bending stiffness is relatively large, which can resist the larger unbalanced bending moment during construction and the bending moment caused by live load or other actions during operation. The steel box girder hanging hole is set in the middle span, which releases the huge horizontal thrust and bending moment caused by prestress, concrete shrinkage and creep and temperature within the length range of the main bridge so that the overall stress of the structure is optimized.
Figure1. General layout of the main bridge (Unit: m)
The superstructure of the main bridge adopts a variable cross-section fully prestressed concrete box girder structure except that a steel box girder hanging hole of 60 m is adopted in the middle span. The total length of arc V-leg is 60 m, and the extension on both sides is 30 m.
The bridge deck box girder is 29 m wide, with a straight web, single box and sixcell box section. The top slab width is 29 m, the bottom slab width is 24 m, and the cantilever length on both sides is 2.5 m. The width of the landscape platform under the arc V-leg and the bridge deck girder is 41 m. The height of the side fulcrum beam is 2.5 m, the height of the beam at the junction of the main girder and the landscape platform is 3.5 m, the height of the main girder at the upper part of the arc V-leg triangle area is 3.5 m~2 m, and the height of the main girder at the cantilever end of the hanging hole is 3 m. The height of the steel box girder is 2.75 m~3 m. The arc Vleg is 1.8 m high at the end of the landscape platform (at the junction with the main girder) , 0.8 m coincident with the beam, and approximately 3.5 m high at the root section consolidated with the platform. The top slab thickness of the box girder section of the side span main girder is 0.25 m, the top slab thickness of the box girder in the V-leg triangle area is 0.45 m, and the top slab thickness of the cantilever end is 0.25 m. The bottom slab thickness of the side span is 0.22 m~0.40 m, and the bottom slab thickness of the V-leg triangle box girder and the cantilever end are 0.25 m. The web thickness is 0.5 m~0.80 m, and the web thickness of the V-leg triangular box girder is 0.8 m. The concrete box girder is calculated according to the fully prestressed structures, and 8 bundles of 17-ø15.2 steel strands are arranged in each web. The details of the joint between the V-leg structure and the main girder are shown in Figure2 and Figure3.
Figure2. Arc V-leg structure and box girder combined position elevation diagram (Unit: mm)
Figure3.1/2 Section diagram of the combined position of the arc V-leg and box girder (Unit: mm)
3 . Finite element method solid model analysis
According to the characteristics of the space plate-shell structure formed by the arc V-leg of this bridge, it is necessary to carry out mechanical performance analysis on the following component nodes. (1) Analysis of the mechanical behavior of the joint section of the arc V-leg and the girder, including the distribution of thelongitudinal stress on the section and the transverse stress distribution caused by the arc V-leg landscape platform; (2) Spread of longitudinal stress from the joint position of girder and arc V-leg structure to the joint position of arc V-leg structure and bridge pier, and vertical stress distribution at the bottom of bridge pier.
A concrete solid model was established using the general finite element software ANSYS, as shown in Figure4. Translation: The concrete grade of the concrete main beam is C50 (cube strength) , and the elastic modulus is 3.45 E05 MPa. The concrete of structure was simulated using the Solid45 element with 8 nodes, and the prestressed tendons were simulated using the Link8 element. The pre-stressing load is applied using the cooling method. As both the V-leg frame and main beam of the bridge are prestressed concrete structures, the concrete constitutive relationship was modeled with the W‒W failure criterion, and the stress‒strain relationship prior to cracking and crushing was linear. Taking the V-shaped rigid frame and the main girder on the east side as the research object, the modeling range is from the bottom of the pier to the bridge deck, and the longitudinal range is from the corbel position under the hanging hole to the fulcrum position of the side pier. The boundary conditions of the model are as follows: fixed constraints are set at the bottom of piers, and vertical constraints are set at edge pier supports. The loads in the model include the first-stage dead load, the second-stage dead load (including the weight of decorative marble) , and the prestress effect.
Figure4. Solid finite element model established by ANSYS software
3.1 . Structural deformation
To visually observe the stress and deformation situation, Bridge Doctor V3.2.0 is used to establish a frame model. The modeling method for the frame model is described in section 3.1 below. The deformations of the key points of the structure calculated by the solid model and the frame model are shown in Table1. The displacements of key points of the solid model and frame model are basically the same without prestress. In the prestressed state, the displacement of the two models in the midspan of the side span is basically the same, and the displacement direction of the corbel is opposite. However, considering that the absolute value of the displacement is small, this position is at the starting point of the longitudinal prestressed steel bundle, and the calculation methods of the local prestress loss of the two models aredifferent, so it can be considered that the deformation of the two is still consistent. The vertical deformation of the solid model structure is shown in figure5.
Table1. Displacement comparison of key points of solid model and frame system model (Unit: mm)
Note: The displacement direction is positive with vertical downward
Figure5. Vertical deformation of the solid model (Unit: m)
Before and after the prestress in the main beam is applied, the vertical displacement of the cantilever end of the arc V-leg is shown in Table2. The prestressing effect raises the cantilever corner of the V-leg structure by 59 mm.
Table2. Vertical displacement of the cantilever end of arc V-leg before and after prestress application (Unit: mm)
Note: The displacement direction is positive with vertical downward
3.2 . Longitudinal stress of arc V-leg
In order to reflect the distribution of the longitudinal stress of arc V-leg on the cross section, several sections are selected along the longitudinal direction of the bridge at certain intervals to view the stress distribution. The section positions are shown in Figure6. Sections 1-7 and 22-28 reflect the stress distribution of the joint section between the main beam and the V-leg, and sections 8-21 reflect the stress distribution of the lower part of the V-leg. The longitudinal stress distribution of the solid model is shown in Figure7. The stress distribution in the lower part of the Vleg conforms to the general characteristics of a V-shaped rigid frame bridge [4]. The stress distribution at the four corner points of the cantilever is different from otherpositions of the bridge because they are subjected to less force and their stress is mainly generated by self-weight.
Figure6. The sections position selected in the longitudinal direction (Unit: mm)
Figure7. Longitudinal stress distribution of the half-bridge model (Unit: Pa)
3.2.1 . Joint section of the main beam and arc V-leg
The stress state and detailed design of the junction between the V-leg and the main beam have always been the focus of research on the V-shaped bridge system [5][6]. The stress distribution of the joint section in this project is as follows:
Due to the symmetry of the structure, only the longitudinal stress distribution diagram of sections No.1-7 is presented here. Due to space limitations in this paper, only representative sections No.1 and No.7 are shown.
The stress distribution of section No.1 (Figure8) is not uniform and is concentrated in the main beam and part of the V-leg (below the main beam) , and the stress of the cantilever arm of the V leg is relatively small. The stress of the upper edge of the main beam is approximately-6.5 MPa, and the stress of the lower edge of the main beam is approximately-4.5 MPa. The average stress of the cantilever section of the V-leg is approximately-1.5 MPa, and the tensile stress (approximately 1.5 MPa) appears at the lower edge of the cantilever end. The stress distribution of the girder web is more uniform.
Figure8. Longitudinal Stress of No.1 Section (Unit: Pa)
The stress distribution in the top, bottom and web plates of the cross beam at section 7 (Figure9) is relatively uniform. The stress at the upper edge of the main beam is approximately-6.5 MPa and that at the lower edge is approximately-6.0 MPa. The average stress of the section in the box girder is low, approximately-1.0 MPa, and there is little tensile stress in the corner of some cells. The average stress of the cantilever of the V-leg is-3.5 MPa, and the stress of the lower edge is greater than that of the upper edge.
Figure9. Longitudinal stress of No.7 section (Unit: Pa)
Therefore, the compressive stress is mainly distributed in the range of the main beam and part of the V-leg (below the main beam) , and the compressive stress is smaller in the range of the V-leg cantilever. From section No.1 to No.7, the stress distribution tends to be uniform.
Taking the section of the main girder and the V-leg below the main girder as the object, the average stresses at the top (main girder) and bottom (V-leg) of the section are obtained. Compared with the calculation results of the frame model, the results are shown in Figure10.
Figure10. The section average stresses of the solid model and frame model (Unit: MPa)
The stress trend is the same, although the stress values calculated by the solid model are slightly lower than those of the frame model. This difference may be attributed to the fact that the sections in the frame model only account for the main beam and a portion of the V-leg located below it, while the sections of the arc V-leg cantilever are not included, resulting in a lower stiffness of the sections.
3.2.2 . arc V-leg section
As the structure is symmetric, only the longitudinal stress distribution diagrams of sections No.8-14 are presented here. Due to space limitations in this paper, only the representative sections No.9 and No.13 are shown.
The stress distribution in section No.9 (Figure11) is uniform, but there is an obvious stress concentration phenomenon in the V-leg section. The stress is highest near the centerline of the structure and gradually decreases towards both sides. The bottom slab experiences significantly higher stress than the top slab, with maximum stress at the top of the bottom slab measuring around-15.0 MPa. The average stress on the top slab is approximately-8.0 MPa, and the average stress on the bottom slab is about-12.0 MPa. The stress in the web also decreases from the center to the sides. The stress in the cantilever of the V-leg is roughly-7.0 MPa.
Figure11. Longitudinal Bridge Stress of section No.9 (Unit: Pa)
In section No.13 (as shown in Figure12) , the thickness of the bottom plate of the V-leg has been increased, resulting in a decrease in stress levels. The average stress of the top slab is approximately-4.5 MPa, while the average stress of thebottom slab is around-2.5 MPa. Moreover, the local stress level at the top of the bottom slab is relatively low. The average stress in the cantilever of the V-leg is similar to that of the V-leg under the main beam.
Figure12. Longitudinal stress of section No.13 (Unit: Pa)
Section No.8 is a cross beam section, and it exhibits a more uniform stress distribution. The stress distribution of the No.9 section nearest to the joint section is the most uneven, and the maximum value appears at the bottom plate of this section, which is approximately 15.0 MPa. The stress level is relatively high, so it can be considered to increase the thickness of the bottom plate. From section 9 to section 14, the stress distribution becomes more uniform, and the average stress levels gradually decrease.
3.3 Transverse stress of arc V-leg
A 216 kN load is applied on the cantilever landscape platform with a curved Vleg to simulate the effect of the footbridge and pedestrian load. Multiple sections along the transverse of bridge are selected according to a certain distance to view the transverse stress distribution. The positions of sections A, B and C are shown in Figure13.
Figure13. The section positions selected in the transverse direction (Unit: mm)
Section A (Figure14) showed that tensile stress appears around the box chamber at the lower part of the V-leg, mainly concentrated on the top edge of the top plate and the cross beam, and the tensile stress value is about 2.0 MPa. The value of tensile stress in the middle section of the beam is small. The pier is mainly compressed.
Figure14. Transverse Stress of Section A (Unit: Pa)
Section B (Figure15) showed that tensile stress appears at the top edge of the top plate and bottom plate of the V-leg, the tensile stress value is about 2.0MPa. The tensile stress near the cross beam decreases or disappears. Section C (Figure16) shows a similar stress distribution as Section B, with a smaller tensile stress distribution area.
Figure15. Transverse Stress at Section B (Unit: Pa)
Figure16. Transverse Stress at Section C (Unit: Pa)
It can be seen that the maximum tensile stress of the top plate at the transverse cantilever root of the curved V-leg is approximately 2.0 MPa. Assuming that the average tensile stress in the vertical direction of the top plate of the section is 2.0 MPa and the thickness of the top plate is 250 mm, the total tensile force of the structure per meter is 2.0 × 250 × 1000 = 500000𝑁 . Adopting the stress method for reinforcement design [7], assuming that the tensile force after cracking is borne by the steel bars, the tensile stress of the steel bars at the cracked section is 110 MPa, and the calculated area required for the steel bars is 500000 ÷ 110 = 4545𝑚 𝑚 ². The actual reinforcement used at this location is φ32@150, and the steel bar area is (𝜋 × 32²/4) × (1000/150) = 5362𝑚 𝑚 ² >4545𝑚 𝑚 ², so the reinforcement in the tensile zone meets the requirements.
4 . Overall calculation
4.1 Calculation method and model
The bridge was modeled and analyzed using the Bridge Doctor Plane Truss System Finite Element Program (V3.2.0) . As the main beam and V-leg are both boxshaped sections with a section height of 2.0 m to 3.5 m, and the single-side span of the V-leg is about 30 m, they generally follow the stress characteristics of beam elements, so beam elements were used to simulate the entire model. The main beam was made of concrete with strength grade C55 (cube strength) , and calculated according to full prestressed concrete member.
The support at the end of the main bridge adopts vertical support, and the pier column of the arc V-leg adopts fixed support. The connection between the concrete girder and steel box girder (suspended beam) adopts a master-slave constraint. One end of the master-slave constraint adopts a bidirectional constraint, and the other end adopts a vertical constraint. The steel box suspended girder is simulated by the virtual beam method, and its weight is added to the corbel of the concrete main girder as a node load. The steel box girder elements in the model are only used to calculate the live load. The curved V-leg element and the main beam element are treated by the common node method at the joint section. Because the V-shaped pier is wider than the main beam, according to the previous solid model analysis, based on the extent of the V-shaped pier's effective participation in force distribution, the effective cross-sectional area of the curved V-shaped pier is simplified. Specifically, its effective distributed width linearly interpolates from 29 m to 41 m from top to bottom, rather than being calculated based on its full width of 41 m [8].
Box girder analysis is conducted separately for the construction and service stages and calculated according to specification requirements for each stage. Translation: When calculating for temporary conditions, each construction step should be analyzed and calculated separately. When calculating for sustained conditions, factors such as structural self-weight, shrinkage creep, prestressing, highway class I loading, bearing settlement, and temperature are considered, and the normal usage ultimate limit state and the bearing capacity ultimate limit state are computed accordingly. Due to space limitations, only the analysis of the bearing capacity ultimate limit state under sustained conditions is displayed below. In the following stress diagrams and text, negative values represent tensile stress, and positive values represent compressive stress.
4.2 Ultimate state analysis of the bearing capacity under endurance conditions
The calculation results of the bending capacity of the normal section of the main beam and the arc V-leg are shown in Figs.17-19. The contribution of longitudinal reinforcements is considered in the calculation of bending capacity.
Figure17. The maximum bending moment diagram and bending capacity envelope diagram of the normal section of the left half of the main girder (Unit: kN·m)
Figure18. The maximum and minimum bending moment diagram and bending capacity envelope diagram of the normal section of the arc V-leg (Unit: kN·m)
Figure19. The minimum bending moment diagram and bending capacity envelope diagram of the normal section of the left half of the main girder (Unit: kN·m)
The calculation results show that the bending moments of the sections of the main beam and arc V-leg are less than the ultimate bending moment bearing capacity, which meets the specification requirements. The shearing force of sections of the main beam and arc V-leg are less than the ultimate shear force bearing capacity, which meets the requirements of the specification.
5 . Conclusions
This article is based on Quzhou Academy Bridge as the research object, conducting solid analysis based on shell-plate structure and overall analysis based on frame structure. The main conclusions are as follows.
(1) . For large-span arc V-leg structures where the V-legs platform are wider than the main beam, the effects of the curved shell structure must be considered, that is, the stress and deformation in both longitudinal and transverse directions cannotbe ignored. The jointed section of the arch-shaped V-leg and the main beam have complex local stress influences and uneven stress distribution.
(2) . The vertical displacement of the cantilever end of the arc V-leg before and after the internal prestressing of the main beam is 62 mm and 3 mm, respectively; that is, the prestress is applied to rise it vertically by 59 mm.
(3) . In the joint section of the arc V-leg and the main girder, the compressive stress along the longitudinal direction is mainly distributed in the part of the V-leg section below the main girder, and the compressive stress is small in the range of the V-leg cantilever. From section No.1 to section No.7, the stress distribution tends to be uniform. The stress distribution trend continues in the arc V-leg section, from section No.9 to section No.14, the stress tends to be uniform from uneven, and the average stress level of the section also decreases gradually.
(4) . The transverse direction stress of arc V-leg is mainly concentrated in some areas of the cantilever. Tensile stress appears around the V-leg box chamber, mainly concentrated in the top of the top slab and local zones of the crossbeam, with the tensile stress value being approximately 2.0 MPa. The stress method was used for reinforcement design to control the crack width within the allowable range of the specification. The tensile stress value in the middle of the end crossbeam is relatively small, and the bearing platform of the pier mainly experiences compression.
Xiong, Z.;Chi, C. Analysis and Design of Large-span Reinforced Concrete Spatial Curved Plate and Shell Structure. Sichuan Architecture 2015,35,144-146.
Huang, W. Stress Analysis of Plate and Shell of Prestressed Skew Leg Rigid Frame Bridge. Gansu Science and Technology 2006,124-126+169.
Chen, Y. Study on Structural System of Bridge with V-shaped Support. Journal of Jiamusi University(Natural Science Edition)2014,32,364-366+370.
Yang, L. Calculation and analysis of substructure of a V-shaped rigid frame bridge. Northern Communications 2020,14-17,doi:10.15996/j.cnki.bfjt.2020.07.004.
Xu, H. Design of Consolidation Zone of V-shaped Pier Rigid Frame Bridge. China Highway 2020,104-105,doi:10.13468/j.cnki.chw.2020.06.033.
Wang, X. Design and construction of V rigid frame. Transpo World 2015,74-75+79,doi:10.16248/j.cnki.cn11-3723/u.2015.08.034.
Jia, B. Application of CEB-FIP Method in Design of Reinforced Concrete Slab and Shell. Sichuan Architecture 2010,30,134-135.
Cai, L. Study on the influence of short span V-shaped rigid-frame bridge pier stiffness to structural. In Proceedings of the 2019 Academic Annual Meeting of China Civil Engineering Society, Shanghai, China,2019;pp.534-537.